КЕДР

Дом 215 м2

Построен из экологических материалов с соблюдением строительных норм: 

  • Несущие стены из крупноформатного керамического поризованного блока Поротерм, не требующий дополнительного утепления  
  • Облицовка - керамический кирпич 1НФ, шоколад Антик, белый Рустик 
  • Фундамент: свайно-ленточный 
  • Стены оштукатурены механизированным способом по маякам - можно сразу клеить обои, на полу полусухая стяжка по уровню - готова к укладке ламината.
  • Несущие стены из крупноформатного керамического поризованного блока Поротерм, не требующий дополнительного утепления 
  • Облицовка - керамический кирпич 1НФ, шоколад Антик, белый Рустик 
  • Фундамент: свайно-ленточный 
  • Стены оштукатурены механизированным способом по маякам - можно сразу клеить обои, на полу полусухая стяжка по уровню - готова к укладке ламината.
Дом 215 м2

Построен из экологических материалов с соблюдением строительных норм: 

  • Несущие стены из крупноформатного керамического поризованного блока Поротерм, не требующий дополнительного утепления  
  • Облицовка - керамический кирпич 1НФ, шоколад Антик, белый Рустик 
  • Фундамент: свайно-ленточный 
  • Стены оштукатурены механизированным способом по маякам - можно сразу клеить обои, на полу полусухая стяжка по уровню - готова к укладке ламината.
  • Несущие стены из крупноформатного керамического поризованного блока Поротерм, не требующий дополнительного утепления 
  • Облицовка - керамический кирпич 1НФ, шоколад Антик, белый Рустик 
  • Фундамент: свайно-ленточный 
  • Стены оштукатурены механизированным способом по маякам - можно сразу клеить обои, на полу полусухая стяжка по уровню - готова к укладке ламината.
Запишитесь на бесплатную экскурсию по поселку
вы узнаете
- конструктив дома со всеми особенностями
- точное расположение посёлка
- познакомитесь с будущими соседями
- пройдете пешком по посёлку и до ближайших достопримечательностей (два пляжа, лес и т.д.)

Оставьте заявку или позвоните по телефону

+7 (927) 102-76-10
Долговечные материалы и лучшие технологии
Фундамент - железобетонная утепленная шведская плита. Обеспечивает равномерное распределение нагрузки дома по всему основанию
Перекрытия - железобетонная плита. Продолжительный срок службы при различных условиях без потери качеств, а также способность противостоять коррозии и гниению
Наружные стены - газобетонные блоки D600. Газоблоки Bonolit считаются одними из лучших в плане качества и эксплуатации. Одним из главных достоинств таких изделий является их прочность
Наружная отделка - кирпич “Воротынск” премиум Увеличивается теплопроводность и прочность стен. Фасад будет долгие годы радовать своим внешним видом
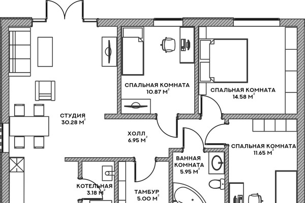
Планировка - на выбор Типовая: 5 спален, 2 санузла с 2 ванными комнатами, кухня, гостиная, котельная, холл, веранда, балкон, прихожая
Межэтажная лестница - монолитная. Долгий срок службы. Высокая прочность и грузоподъемность. Пожаробезопасность, стойкость к грибкам и плесени. Нет нагрузки на стены
Кровля - мягкая черепица на стропильной системе, утепленная. Мягкая черепица как надежное и изящное кровельное покрытие ценится во всем мире. Даже в жуткий ливень у вас будет тихо и комфортно
Окна - двухкамерные стеклопакеты с энергосберегающей системой. Сохранение тепла в помещении во время отопительного сезона, обеспечение прохлады в комнате при летней жаре. Окрашены в цвет фасада
Двери - железная входная дверь. Оптимальные в плане обеспечения безопасности помещений, прочность и долговечность, тепло- и звукоизоляция, низкие эксплуатационные расходы
Электроснабжение - 15 кВт трех фазная. Возможность непосредственного подключения в сеть трехфазных электроприемников — электрических котлов, асинхронных электроприводов
Водоснабжение - скважина на участке. Качество воды. В отличие от колодца, вода в скважине берется из более глубоких и чистых водоносных слоев. 70 метров. Загрязнению сложнее попасть на такую глубину
Газоснабжение - конец 2022 года. Жизнеобеспечение газифицированного дачного дома требует минимального участия хозяина: нужно всего лишь научиться правильно включать котел и регулировать интенсивность его работы
Канализация - очистное сооружение на каждый участок. К преимуществам системы относится доскональная очистка сточных вод. Воду можно сбрасывать в любое место, даже для полива. Такие станции не оставляют запаха, очень компактны, и процесс очистки происходит быстрее.
Отопление - электрический/газовый котел. Электрические котлы используются в системах автономного отопления. Они компактны, их можно устанавливать в любом месте, им не нужен дымоход.
Выберите вариант отделки
White box
  • Полы выровнены, сделана стяжка
  • Выполнена гидроизоляция пола
  • Смонтирован водяной теплый пол
  • Все коммуникации подключены и разведены по дому (электричество, канализация, водопровод)
  • Возведены внутренние перегородки, выполнена пароизоляция
  • Стены выровнены, готовы под финишную отделку (покраска, обои)
  • Сделаны дверные проемы
Под ключ
  • Выполнены все работы из типа отделки «white box»
  • Выполнена чистовая отделка пола (теплый пол и ламинат)
  • Выполнены чистовая отделка стен и покраска балок
  • Выполнена отделка санузлов с комплектацией сантехникой: смеситель, раковина, ванна, подвесные унитазы, полотенцесушители
  • Установлены входная дверь и межкомнатные двери
  • Смонтированы выключатели, розетки и светильники
  • Выполнено устройство натяжных потолков
  • Установлена лестница
Наши поставщики и партнеры
Какой может быть отделка? Можем воплотить любую вашу идею!
Поможем получить ипотеку
Наши специалисты предложат вам лучшую программу ипотечного кредитования в любом банке
Вам не нужно ездить по банкам, все работы мы берем на себя!
0 руб.
первый взнос
4,5 %
процентная ставка
до 25 лет
срок кредита
Сумма кредита
до 7 000 000 руб
Получите консультацию
по ипотечному кредитованию
ЧТО ГОВОРЯТ КЛИЕНТЫ О СОТРУДНИЧЕСТВЕ С НАМИ
ОТБРОСЬТЕ СОМНЕНИЯ Наши специалисты готовы помочь Вам! Оставьте заявку на обратный звонок или отправьте сообщение и мы ответим Вам в самое ближайшее время, или же свяжитесь с нами по контактам указанным ниже.
Нужна консультация?
Менеджеры проконсультирую Вас по всем вопросам
+7 (927) 102-76-10 ПЕРЕЗВОНИМ
Остались вопросы?
Отправьте сообщение и мы ответим Вам в ближайшее время!
Bekker.stroy@yandex.ru НАПИСАТЬ НАМ